Działka na sprzedaż, 7486.00m2, Otomin
Działka nad jeziorem dla inwestora
Opis oferty
INVILLA to nowoczesne biuro nieruchomości premium, które od lat z powodzeniem łączy ludzi z wyjątkowymi miejscami – z pasją, profesjonalizmem i pełnym zaangażowaniem.
Na sprzedaż niezwykła działka w Otominie z linią brzegową.
Idealna pod małe osiedle domów lub dom seniora, bądź obiekt z usługami noclegowymi.
Jest ona zlokalizowana w sąsiedztwie natury, a jednocześnie z bardzo dobrym dostępem do Gdańska oraz obwodnicy Trójmiasta i lotniska.
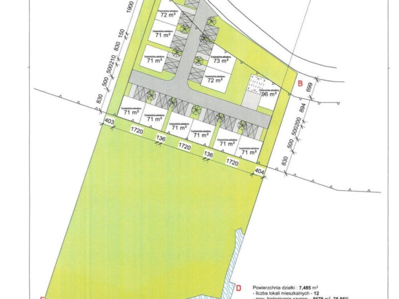
Powierzchnia działki to 7 486 m2. Posiada ona pozwolenie na budowę oraz projekt na dom seniora.
MPZP wskazuje na zabudowę mieszkaniową jednorodzinną z uwzględnieniem usług sportowych i rekreacyjnych. Została także dokonana analiza chłonności działki wraz z dodatkowym projektem na domy szeregowe.
Do podanej ceny netto należy doliczyć podatek VAT.
Niniejsze ogłoszenie nie stanowi oferty handlowej w rozumieniu art. 66 §1 Kodeksu cywilnego i ma charakter wyłącznie informacyjny. Wszelkie dane dotyczące nieruchomości uzyskano na podstawie oświadczeń właściciela. Prezentacja nieruchomości odbywa się na podstawie uprzedniego uzgodnienia terminu.





























































